Space for Lease
Tenant Portal
Investor Portal
Our Companies
Company Overview
Development
Capital
Investor Portal
Residential
Commercial
Pre-Construction
Construction
Property Management
Commercial
Brokerage
Property Management
Facility Services
Multifamily
About Us
Our Team
Careers
Internships
Scholarship Fund
News & Events
Project Portfolio
Contact
Wollochet Office Building
BUILDING AN EXCEPTIONAL FUTURE, TOGETHER.
About Rush
Listings overview
Features
Conveniently located off Wollochet Drive exit on HWY 16
Prime first floor office space (envision the space with the conceptual plans below)
First Generation space can be demised to meet tenant’s requirements
Lower level with existing tenant storage and fitness center
Additional lower level storage or expansion area with roll up door
Excellent monument sign opportunities
Beautiful finishes and landscaping
Minutes to Downtown Gig Harbor and Uptown Shopping Center
Close to Adam Tallman nature trail
Property PDF
Available Space
Space
SQ FT
Available
Floor Plan
Virtual Tour
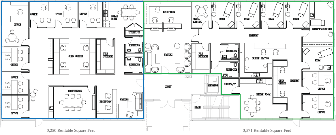
First Floor
6,879, divisible to 3,250 – 3,571 RSF
Now
PDF
TOUR NOW
B100
2,205
Now
PDF
Conceptual Plans
REturn to listings
Address
6514 Wollochet Dr
Gig Harbor, WA 98335
Property Type
Medical, Office
Broker Contact
Emily Frankland
Leasing Broker